gogogo高清在线观看视频中文,国产乱妇无乱码大黄aa片,亚洲成人黄色,3P在线看,99福利,九九国产在线观看,亚洲人成一区二区,亚洲123
歐西盾防水
您當前的位置 : 首頁 > 解決方案與案例 > TWE虹吸排水系統 > 正文

TWE有序虹吸排水系統的工作原理及優勢

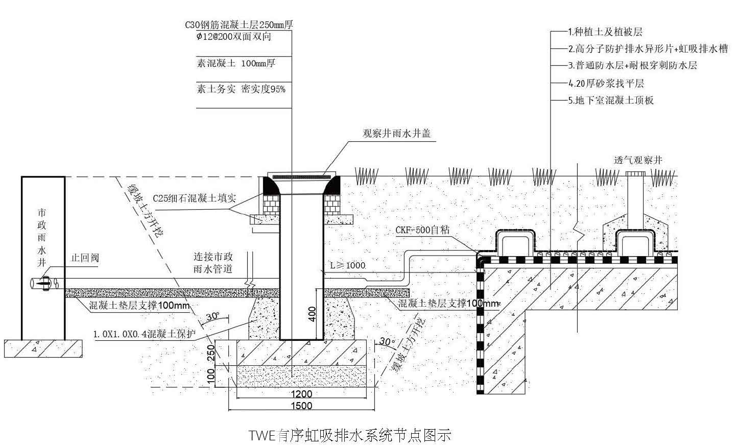
工作原理︰

1、土壤下滲水持續向下滲透,通過高分子防護異型片流至虹吸排水槽內。

2、在虹吸排水槽上安裝通氣管,虹吸排水槽內的水在空隙、重力和通氣的綜合作用下不斷向出水口處匯集。

3、出水口通過管道變徑的方式,使雨水在虹吸直管形成滿流,從而形成虹吸,虹吸排水槽內的水不斷被吸入觀察井。

4、經觀察井沉淀,排入有序虹吸排水系統,待晴天需要對綠化植物進行澆灌時再對雨水進行循環利用,從以往的被動排水轉變成了現在的主動式排水,從而真正實現了零坡度、有組織排水。


  • Copyright 2024 江蘇歐西盾科技有限公司 版權所有
  • 備案號:蘇ICP備2022045791號