gogogo高清在线观看视频中文,国产乱妇无乱码大黄aa片,亚洲成人黄色,3P在线看,99福利,九九国产在线观看,亚洲人成一区二区,亚洲123
tpo防水卷材
您當前的位置 : 首 頁 > 媒體中心 > 技術解讀

技術貼丨衛生間三大細部節點防水處理

2020-07-10

家居裝修中防水自然是重中之重,尤其在利用水比較多的空間當中,如:衛生間防水,這個防水界經久不衰的話題,卻也是Z難做好的區域!衛浴間是水電匯集之地,防水構造設計不合理、防水選材不合適、防水施工不標準等都會導致漏水漏電,給住戶帶來不可估量的損失。衛生間防水薄弱部位主要包括門口、地漏、管根、陰陽角等,下面從防水構造設計、防水選材、防水施工三個方面介紹細部節點部位的防水處理



一、衛浴門口


衛浴間門口是Z容易忽略的點,忽略了衛浴間門口的防水,試想一下房子居住一段時間后發現墻面返潮發霉掉皮,每次洗澡都會有樓下的鄰居找上門,類似這些糟心事接踵而至,原本平靜美好的生活被打亂節奏。而且漏水問題返修的工程量一般情況下也是較大的,所以好的辦法就是防患于未然,在裝修施工時,選好防水材料,做好防水工藝。這種情況往往是周邊的積水沿著瓷磚下面的水泥砂漿縫隙向門檻外滲漏導致的。



微信圖片_20200718151050.jpg

                                                                                              圖1 衛浴間門檻



1、防水構造設計


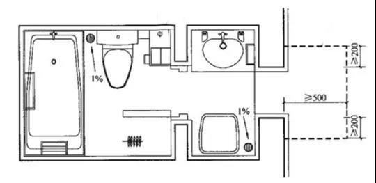
衛浴間門口處防水層應水平延展,且向外延展的長度不應小于500 mm,向兩側延展的寬度不應小于200 mm(圖2)。


微信圖片_20200718151127.jpg

                                                                               圖2 門口處防水層向外延展范圍



2、防水材料選擇


衛浴間門口處的防水相對簡單,可選用和其整體防水一致的防水材料,包括防水砂漿聚合物水泥防水涂料、水乳瀝青防水涂料或非溶劑型的聚氨酯防水涂料及反應型防水涂料

3、防水施工

衛浴間門口處的防水處理可按下述。

(1)基層表面處理:清理基層表面,使得基層堅實平整,無浮漿、起砂、裂縫現象。同時基層表面不得有積水,基層含水率需滿足施工要求。

(2)涂料配制:單組分涂料開蓋攪拌均勻后直接使用;雙組分涂料按照配比要求在現場配制,攪拌均勻,不得有顆粒懸浮物。

(3)防水涂料施工:防水涂料薄涂多遍施工,前后兩遍的涂刷方向應相互垂直,涂層厚度均勻,不得有漏刷或堆積現象。在前一遍涂層實干后,再涂刷下一遍涂料。




二、地漏防水處理


重點留意封嚴地漏邊縫,地漏安裝固定好后,需要注意務必將地漏四面的縫隙用玻璃膠或粘合劑封嚴,確保下水管道的臭氣無法通過縫隙散發出來


微信圖片_20200718151208.jpg

                                                                                                圖3 衛浴間地漏



1、防水構造設計


衛浴間地漏的防水構造見圖4。


微信圖片_20200718151239.jpg

                                                                                        圖4 地漏防水構造



2、防水材料選擇


地漏細部節點防水材料一般可選用聚合物水泥防水涂料、水乳瀝青防水涂料、密封膠或非溶劑型的聚氨酯防水涂料及反應型防水涂料。

3、防水施工

地漏防水施工包括找平層施工、開槽、設置加強防水層三個步驟,具體施工要點如下。

(1)找平層施工:從地漏出水口向四周拉放射線找坡(當地漏靠墻時,其余墻的根部應保證在同一標高上),樓地面向地漏處的排水坡度不宜小于1%,地漏應低于地面層表面5~8 mm。

(2)開槽:如已預留凹槽則無需開槽,如無預留凹槽則在地漏與地面混凝土間開凹槽,深度及寬度以開至結構層為準,即PVC管四周無松動砂漿層,一般為10 mm×15 mm,Z后將開槽部分用密封膠或與密封膠相同功能的密封材料進行密封防水處理。


微信圖片_20200718151503.jpg


(3)設置加強防水層:地漏四周應設置加強防水層,加強防水層范圍應該以地漏口為中心,向四周延伸不少于300 mm范圍,并采用“兩涂一布”的施工工藝,在防水涂料施工中加入胎體增強材料,胎體增強材料一般選用30~50 g/m2的聚酯纖維無紡布、聚丙纖維無紡布、耐堿剝離纖維無紡布。



三、管根防水處理


衛浴間管根部位(圖5)為防水的薄弱環節,是衛浴間的漏水多發點,因此在對衛浴間進行防水處理時需要重點注意。


微信圖片_20200718151611.jpg

                                                                                             圖5 衛浴間管根



1、防水構造設計


衛浴間管根的防水構造如圖6所示

微信圖片_20200718151649.jpg


                                                                                          圖6 衛浴間管根防水構造



2、防水材料選擇


管根部位的防水可采用防水砂漿、聚合物水泥防水涂料、水乳瀝青防水涂料或非溶劑型的聚氨酯防水涂料及反應型防水涂料以及密封膠或與密封膠相同功能的密封材料。

3、防水施工

衛浴間管根的防水施工主要包括開槽密封、砂漿填平以及設置加強防水層三個步驟,具體如下。

(1)開槽密封:圍繞管口周圍進行開槽,深度及寬度以開至結構層為準,即PVC管四周無松動砂漿層,Z后將開槽部分用密封膠、止水條或與密封膠有相同功能的密封材料進行密封防水處理。

(2)砂漿填平:使用防水砂漿將管口部位填平,并做圓弧處理,防止應力集中發生開裂。

(3)設置加強防水層:管口四周應設置加強防水層,加強防水層范圍應該以管口為中心,向四周延伸不少于300 mm范圍,采用“兩涂一布”的施工工藝,在防水涂料施工中加入胎體增強材料。 




四、陰陽角防水處理


陰角即凹進去的墻角,陽角為凸出來的墻角(圖7)。由于衛浴間墻與地面不是整體連接的,所以其連接處是容易出現滲漏的地方,需要對其進行加強處理。


微信圖片_20200718151732.jpg

                                                                                          圖7 衛浴間陰陽角



1、防水構造設計


衛浴間陰陽角的防水構造見圖8。


微信圖片_20200718151801.png


                                                                               圖8 衛浴間陰陽角防水構造



2、防水材料選擇


衛浴間陰陽角的防水處理可采用防水砂漿、聚合物水泥防水涂料、水乳瀝青防水涂料或非溶劑型的聚氨酯防水涂料及反應型防水涂料。

3、防水施工

衛浴間陰陽角的防水處理可按下述。

(1)基層處理:先檢查基層水泥砂漿找平層是否平整,泛水坡度是否符合設計要求,面層有凹凸不平處時,用水泥砂漿找平,或用水泥膩子補平,再用鋼絲刷、開刀等將粘結在面層上的漿皮鏟掉,Z后將塵土掃干凈。

(2)圓弧處理:對陰角處采用防水砂漿或快干水泥類防水材料做成圓弧狀。

(3)設置加強防水層:在陰陽角處采用“兩涂一布”的防水施工工藝,在防水涂料施工中加入胎體增強材料。


微信圖片_20200718151835.jpg


總結

1.防水材料的防水性能:聚氨酯類>丙烯酸類>JS防水涂料>水泥灰漿類

2.聚氨酯類冒牌的多,質量不達標不環保,請認準正品渠道商,找當地有代理商的牌子;

3.丙烯酸類和JS防水涂料家裝用得比較多,環保、性價比較高,可選用;

4.水泥灰漿省工省錢,但不適合可能存在沉降的新房裝修;

5.刷完1天后做防水試驗,不得不著重強調防水試驗很!重!要!一定要親自到場,對于業主來說,做好防水試驗比了解防水施工工藝更重要!







(本文來 滲漏修繕百科


標簽

相關產品

相關新聞

X
選擇其他平臺 >>
分享到